Villa di Prestigio con Parco Privato e Piscina – Villa Guardia (Zona Via Faverio)
In una delle vie più riservate e ricercate di Villa Guardia, dove sorgono solo dimore indipendenti immerse nel verde, sorge questa villa di prestigio con piscina, circondata da un ampio parco privato di circa 3.900 mq.
Un progetto architettonico raffinato e senza tempo, pensato per offrire comfort, privacy e qualità costruttiva assoluta.
La residenza si sviluppa su tre livelli per una superficie complessiva di circa 410 mq commerciali.
Gli ambienti interni, luminosi e armoniosi, si affacciano con grandi vetrate sul giardino e sulla piscina, creando una continuità naturale tra interno ed esterno.
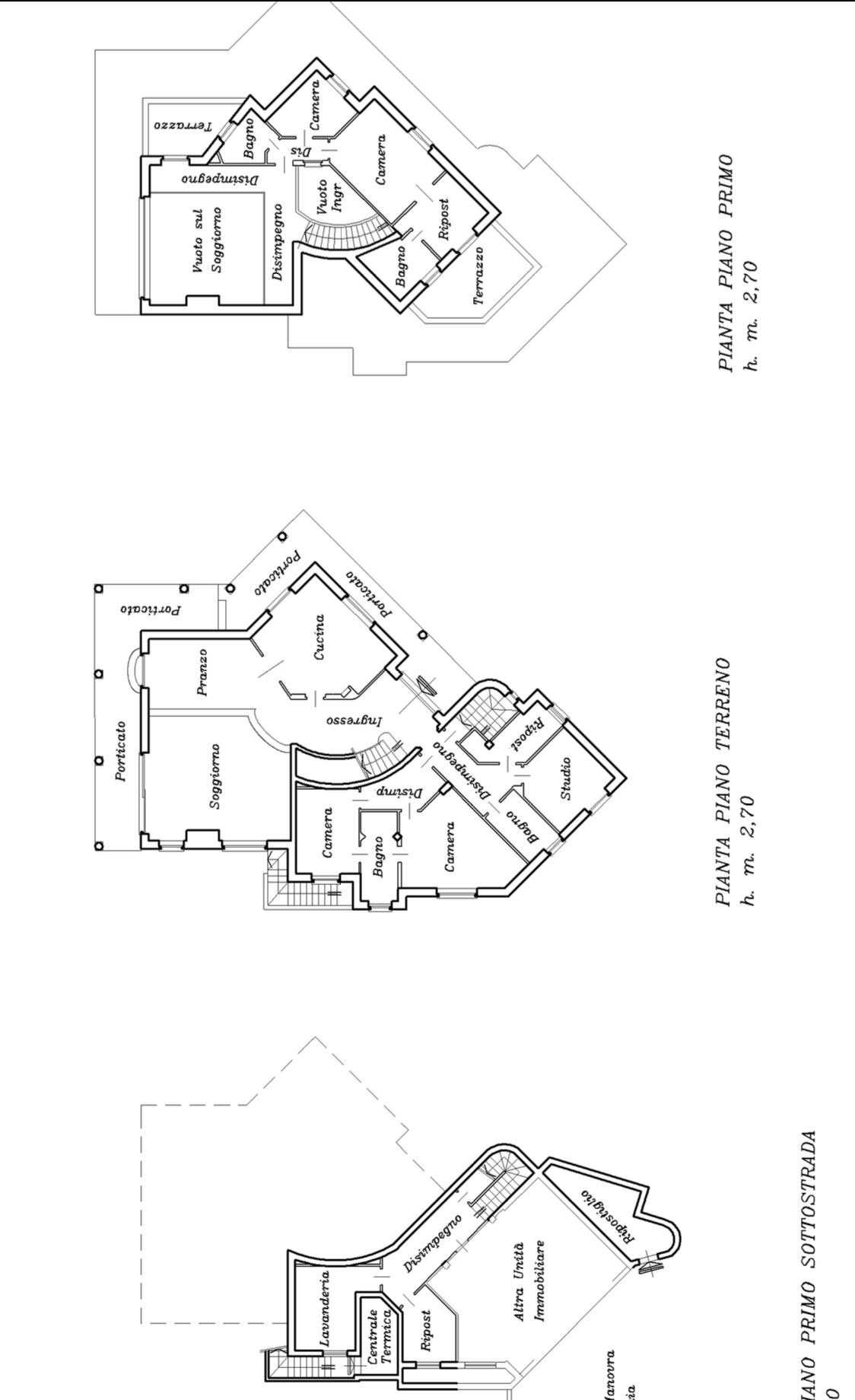
Distribuzione interna
Piano terra (245 mq SLP): ampia zona giorno open-space con salone, sala da pranzo e cucina, studio, due camere, doppi servizi e vari disimpegni.
Piano primo (142 mq SLP): suite padronale con cabina armadio, bagno privato e terrazzo, due ulteriori camere con bagno, balconata interna panoramica e terrazzo di oltre 14 mq.
Piano seminterrato (140 mq SLP): locali tecnici e di servizio, lavanderia, cantina, ampio atrio, e box doppio di 43 mq.
Gli interni sono curati nei minimi dettagli con materiali selezionati: parquet in doussié, cotto dell’Impruneta, rivestimenti in marmo e mosaico Bisazza, infissi in rovere massello e arredi su misura.
La proprietà è dotata di impianto di sicurezza perimetrale e volumetrico, videosorveglianza e connessione diretta con istituto di vigilanza, tutto gestibile da remoto.
All’esterno, una piscina di 12,5 x 6,5 metri è incorniciata da un giardino perfettamente curato, che garantisce massima privacy e relax.
Un valore in più
Il nuovo Piano Regolatore Comunale ha reso edificabile una porzione del terreno di 1.500 mq, con indice 0,60 mc/mq, consentendo 300 mc di nuova volumetria utilizzabile — un plus raro e prezioso per chi desidera ampliare o edificare una dependance all’interno della proprietà.
In sintesi
Superficie commerciale: 410 mq
Parco privato: 3.900 mq
Piscina: 12,5 x 6,5 m
Box doppio: 43 mq
Potenzialità edificatoria: 300 mq
Prezzo richiesto: € 1.550.000
Una residenza di carattere e personalità, perfetta per chi cerca prestigio, privacy e qualità costruttiva autentica a pochi minuti da Como e Milano.
Per informazioni riservate e visite private contattaci.
L’annuncio ha valore puramente informativo e non costituisce elemento contrattuale.








































