Ufficio in vendita a Lecco in esclusiva:
soluzione moderna in posizione strategica, a pochi passi dalla superstrada SS36 (uscita Lecco/Valsassina/Como). Zona comoda, ben collegata e facilmente raggiungibile.
Questo immobile rappresenta uno spazio versatile, grazie alle ampie vetrine, e soddisfa anche le esigenze di visibilità per i contatti con il pubblico, per aziende di consulenza e prestazioni di servizi che hanno l’esigenza di essere raggiunti da una molteplicità di utenti.
UBICAZIONE
Complesso sito in un piccolo centro commerciale, affacciato su un’arteria stradale di
passaggio veicolare, in una zona comoda per tutti i servizi della città e per tutte le direttrici di traffico urbano ed extra urbano, ben servita anche dai mezzi pubblici, il che permette di raggiungere comodamente in brevissimo tempo la stazione ferroviaria della città .
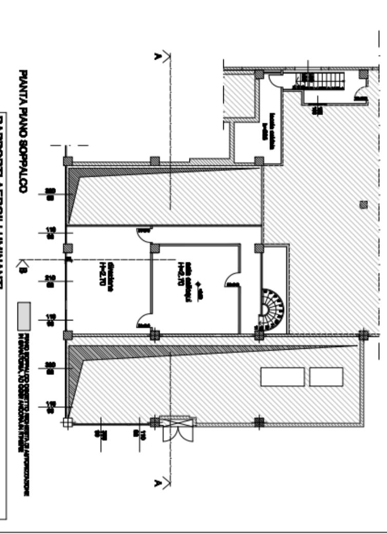
COMPOSIZIONE
Si compone di una grande zona con disimpegno d’ingresso, sale riunioni, uffici, laboratori, archivi, ripostigli, oltre a due uffici con disimpegno al piano soppalco ed a un locale tecnico, situati sopra il corpo uffici.
RISCALDAMENTO E CLASSE ENERGETICA
Riscaldamento e raffrescamento con pompa di calore ad aria; classe energetica D. Indice di prestazione energetica 53,68.

























