Elegante logo DHOME, marchio immobiliare e immobiliare di lusso in Italia.

Trilocale ristrutturato in vendita a Sant’Agata – Cassina de’ Pecchi Giardino privato

Trilocale ristrutturato in vendita a Sant’Agata – Cassina de’ Pecchi Giardino privato

Rif. DHOME_00004652

Via XXV Aprile, 11, 20051 Cassina de' Pecchi MI, Italia

320.000€

107
4 locali
2 bagni
SI Garage
SI Ascensore
piano terra

In Via 25 Aprile, Sant’Agata – Cassina de’ Pecchi, proponiamo in vendita:

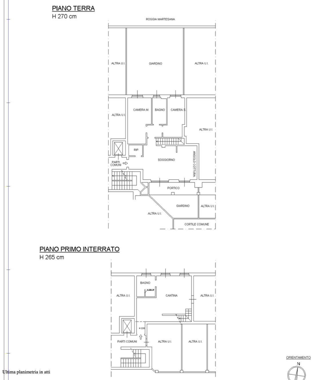
Splendido trilocale di 110 mq completamente ristrutturato, situato in un elegante contesto condominiale dei primi anni 2000, immerso nel verde e nella tranquillità.

L’immobile si sviluppa su due livelli e offre spazi ampi e perfettamente distribuiti.

Piano terra: luminoso soggiorno con cucina a vista e accesso diretto al primo giardino privato, ideale per momenti di relax all’aperto; camera matrimoniale; cameretta con affaccio sul secondo giardino; bagno finestrato e pratico ripostiglio.

Piano seminterrato: ampia e accogliente zona living/taverna, secondo bagno e secondo ingresso privato, soluzione perfetta anche per chi desidera uno spazio indipendente per ospiti, smart working o area hobby.

Completano la proprietà box e cantina inclusi nel prezzo.

La posizione è strategica: a soli 15 minuti a piedi dalla fermata Villa Pompea della linea M2 della Metropolitana di Milano, con collegamenti rapidi verso Milano e i principali servizi della zona.

Soluzione ideale per famiglie che cercano comfort, indipendenza e spazi esterni privati, senza rinunciare alla comodità dei collegamenti.

Anno 2000
Giardino m² 100
Esposizione doppio
Riscaldamento Autonomo
Finiture arredato
Cucina A vista
Qualità impianti Alta/Nuovi
Efficienza energetica - G

Vuoi visitarlo?

E' possibile consultare la privacy policy di Dhome-RE cliccando qui.