Dhome Real Estate propone in vendita un trilocale ristrutturato, luminoso e moderno di 73 mq, situato al primo piano di uno stabile tranquillo e riservato, ideale per chi cerca un’oasi di pace lontano dal caos della vita meneghina. L’ingresso si apre su una zona giorno ampia e accogliente, dove il soggiorno con cucina a vista di alto livello dialoga con un comodo balcone dall’affaccio interno, garantendo massima privacy e silenzio. Le finiture di pregio e gli arredi contemporanei esaltano una distribuzione degli spazi impeccabile, rendendo l’appartamento pronto per essere vissuto immediatamente grazie anche alla recente ristrutturazione totale.
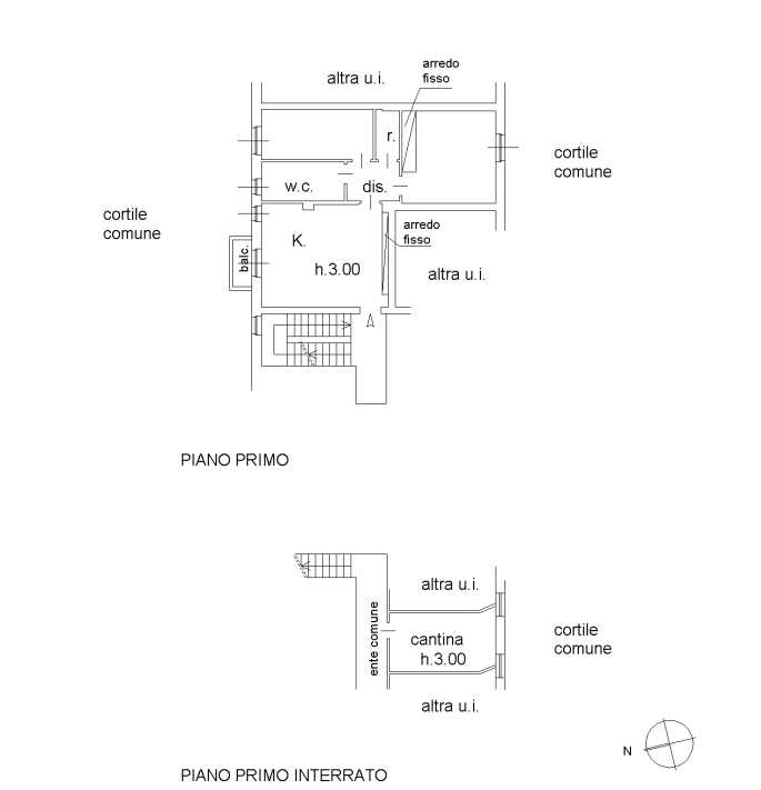
Proseguendo oltre la zona living, un disimpegno conduce alla zona notte: sulla sinistra troviamo il bagno finestrato, finemente ristrutturato e dotato di un ampio box doccia. Subito dopo si sviluppa la camera matrimoniale, un ambiente calmo e spazioso arricchito da ampie armadiature e affaccio interno. La soluzione dispone inoltre di un capiente e funzionale vano ripostiglio, perfettamente integrato per ottimizzare ogni centimetro della casa. Termina la casa una seconda camera finestrata e con ampie armadiature, allestita con una piccola scrivania che crea una funzionale zona studio/lavoro.
L’appartamento è un concentrato di tecnologia: ogni ambiente è dotato di aria condizionata e l’illuminazione è gestita da un moderno sistema di domotica con pannelli touchscreen elettrici. La proprietà è completata da un’ampia cantina di pertinenza di circa 15 mq. All’interno del contesto condominiale, caratterizzato da una quiete assoluta e con spese condominiali di circa 90 euro mensili, è presente un posto auto condominiale a rotazione.
La zona è servitissima: ci troviamo a soli 4 minuti a piedi dal primo supermercato, a un minuto dalla farmacia e a due passi dalle principali fermate dei mezzi che collegano la città. Per quanto riguarda i trasporti a lunga percorrenza, l’immobile dista solo 12 minuti di auto dall’aeroporto di Linate, il quale, tramite la linea M4, permette di raggiungere il centro città in pochi minuti.
































