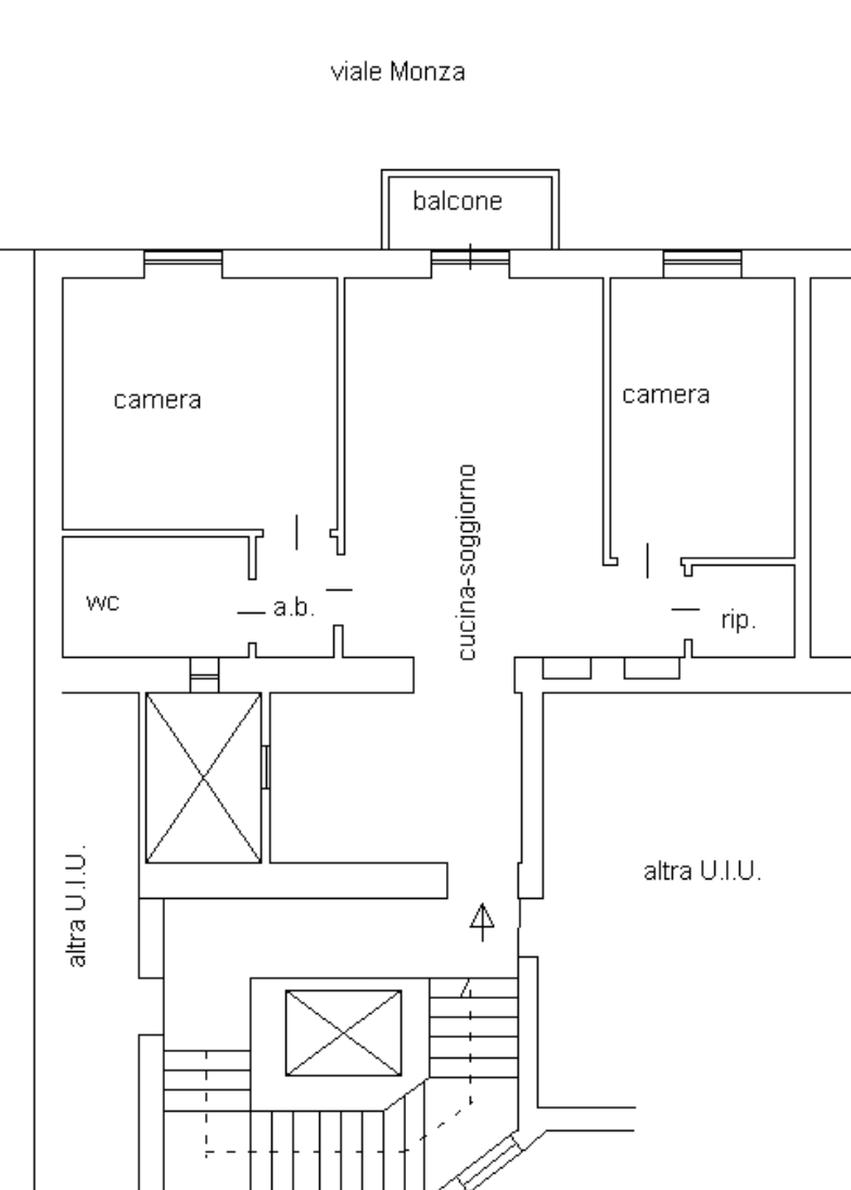
Nel cuore di NoLo, quartiere dinamico e in forte crescita a nord di Milano, proponiamo in vendita un grazioso Trilocale di 80 mq completamente arredato.
L’appartamento, situato al secondo piano con ascensore, si trova in una posizione strategica e perfettamente servita: metropolitane MM1 e MM2, Stazione Centrale e linee 90/91 sono facilmente raggiungibili.
L’immobile è composto da ingresso con cucina a vista, ampio e luminoso soggiorno con balcone, zona notte con camera matrimoniale, camera singola, comodo ripostiglio e bagno finestrato.
La proprietà si presenta in ottime condizioni, dotata di infissi in PVC con doppio vetro e porta blindata. Classe energetica E.
Attualmente locato, rappresenta un’interessante opportunità di investimento con rendita immediata.
Contattaci per maggiori informazioni o per fissare una visita.





























