Elegante logo DHOME, marchio immobiliare e immobiliare di lusso in Italia.

Trilocale in vendita a Monza Come nuovo a due passi dal centro

Trilocale in vendita a Monza Come nuovo a due passi dal centro

Rif. DHOME_00005271

Via Marche, 20900 Monza MB, Italia

219.000€

94
3 locali
1 bagni
NO Garage
SI Ascensore
1° piano

Trilocale finemente ristrutturato, con tripla esposizione.

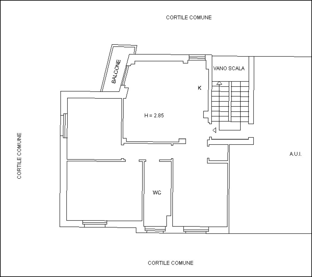
A Monza all’interno di un contesto residenziale tranquillo e ben curato, immerso nel verde di un giardino condominiale, proponiamo in vendita un ampio trilocale di 94mq ristrutturato a nuovo, ideale per chi desidera comfort, funzionalità e qualità della vita, presenti in ogni stanza i climatizzatori e gli infissi nuovi in pvc doppio vetro.

L’appartamento si distingue per una distribuzione razionale e luminosa degli spazi: l’ingresso da su un’ampia cucina abitabile, con doppia esposizione e uscita sul balcone, perfetta per la vita quotidiana e per momenti conviviali, un comodo ripostiglio, ed un elegante soggiorno, pensato come cuore della casa.
La zona notte ospita due ampie camere da letto e un bagno moderno, con box doccia, rifinito con materiali moderni e di qualità.

Il contesto è uno dei veri punti di forza della soluzione: silenzioso, circondato dal verde e allo stesso tempo ottimamente servito, con una scuola situata proprio di fronte all’ingresso, oltre a servizi, mezzi e attività facilmente raggiungibili.

Completa la proprietà una comoda ed ampia cantina.

Una casa pronta da vivere, ideale per famiglie, giovani coppie o per chi è alla ricerca di un’abitazione curata in una delle zone più comode e richieste di Monza.

Anno 1967
Balcone m² 3
Esposizione interno
Riscaldamento Centralizzato
Finiture non arredato
Cucina Abitabile
Qualità impianti Alta/Nuovi

Vuoi visitarlo?

E' possibile consultare la privacy policy di Dhome-RE cliccando qui.