Trilocale luminoso di 72 mq con balcone – Zona Garbagnate Milanese / Cesate
In posizione tranquilla e ben servita, proponiamo luminoso trilocale di 72 mq situato in una zona residenziale tra Garbagnate Milanese e Cesate, comoda per raggiungere i principali servizi, negozi e mezzi di trasporto.
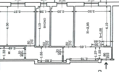
L’appartamento è composto da ingresso, soggiorno accogliente con cucina separata e abitabile, due camere da letto e bagno finestrato. Gli ambienti risultano ben distribuiti e godono di ottima luminosità
Completa la proprietà una cantina (possibilità di box su richiesta).
Soluzione ideale per chi desidera vivere in un contesto tranquillo, verde e ben collegato, a pochi minuti dai principali servizi.
📞 Per fissare un appuntamento o ricevere maggiori informazioni, vi invitiamo a contattarci.
Il presente annuncio è da intendersi a scopo puramente informativo e non costituisce elemento contrattuale.


























