TRILOCALE RISTRUTTURATO – 7° PIANO – CORSICO
In Via Marzabotto 22, Corsico, si propone in vendita appartamento trilocale completamente ristrutturato, posto al 7° piano di stabile residenziale.
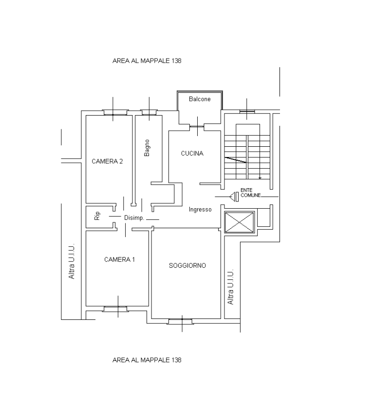
L’immobile è composto da:
-Ampia zona giorno
-Cucina separata con accesso al balcone
-Due camere da letto matrimoniali di generose dimensioni
-Bagno finestrato
L’appartamento presenta una distribuzione razionale degli spazi e gode di buona luminosità grazie al piano alto. La ristrutturazione è recente e consente l’immediata abitabilità.
Contesto servito da mezzi pubblici, attività commerciali e servizi di prima necessità.
Soluzione adatta a uso residenziale principale o investimento.
































