Proponiamo in vendita appartamento a Milano in Via Broni, nel cuore della zona Corvetto – Municipio 4, una delle aree più interessanti della città per chi cerca un immobile ben collegato e con ottimo potenziale di rivalutazione.
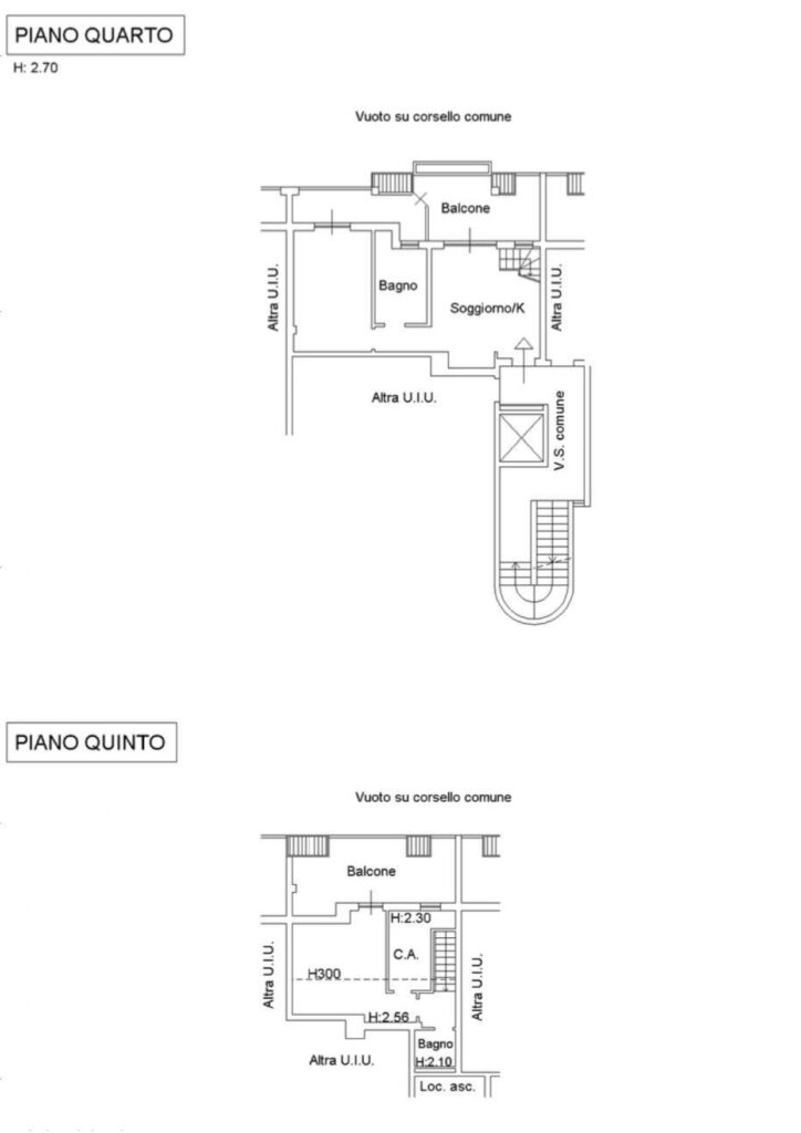
Composto da ingresso, ampio soggiorno, cuicina abitabile, doppi servizi, due camere, ripostiglio e a completare l’abitazione abbiamo la doppia esposizione e due balconi.
Soluzione da non perdere per chi cerca un appartamento a Milano in una zona in crescita, ben servita e strategicamente collegata.
L’appartamento è inserito in un contesto residenziale tranquillo, a pochi minuti dalla metropolitana M3 Corvetto, che permette di raggiungere il centro di Milano (Duomo) in circa 10 minuti, rendendo la soluzione ideale sia come prima casa sia come investimento immobiliare.
Posizione e collegamenti
La posizione dell’immobile in Via Broni garantisce:
vicinanza alla metro M3 Corvetto
rapido accesso a Tangenziale Est e principali autostrade
collegamenti comodi con Porta Romana, Scalo Romana e centro città
ZONA E SERVIZI
La zona Corvetto è in costante evoluzione ed è servita da:
supermercati, scuole, farmacie e negozi di quartiere
aree verdi e spazi ricreativi
servizi pubblici facilmente raggiungibili a piedi
Negli ultimi anni l’area ha beneficiato di interventi di riqualificazione urbana, rendendo Via Broni una zona sempre più richiesta sul mercato immobiliare di Milano.
Ideale per abitazione o investimento
Grazie alla distribuzione funzionale degli spazi e alla posizione strategica, l’appartamento è particolarmente adatto a:
giovani coppie
professionisti
investitori alla ricerca di un immobile da mettere a reddito
I prezzi ancora competitivi rispetto alle zone limitrofe rendono questa soluzione un’interessante opportunità di acquisto.
Punti di forza
Appartamento in vendita a Milano – Via Broni
Zona Corvetto, ben collegata con il centro
Metro M3 a pochi minuti
Ottimo rapporto qualità/prezzo
Ideale come prima casa o investimento

































