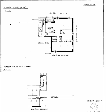
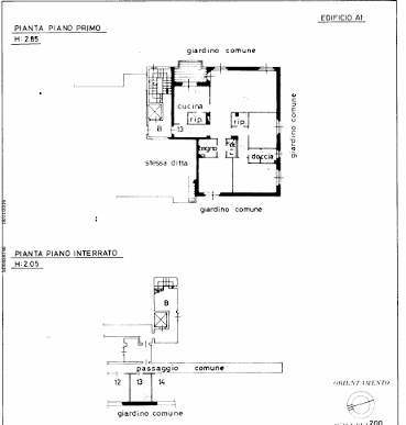
In Viale Suzzani proponiamo in vendita un ampio quattro locali situato al secondo piano, in buone condizioni generali e pronto da abitare.
L’appartamento è composto da un soggiorno spazioso e luminoso, una cucina abitabile comoda e ben separata, ideale per la vita di tutti i giorni. La zona notte offre una camera matrimoniale e altre due camere da letto, perfette per famiglia, studio o ospiti, oltre a un bagno.
Presenti anche un pratico locale lavanderia e uno sgabuzzino, molto utili per organizzare al meglio gli spazi.
Completano la proprietà due balconi, che rendono gli ambienti ancora più ariosi e piacevoli.
Lo stabile è in fase di sistemazione della facciata, un valore aggiunto per il futuro dell’immobile.
La zona è ben servita da mezzi pubblici (tram, autobus e metropolitana M5 nelle vicinanze), con collegamenti comodi verso il centro e le principali aree della città .
Soluzione ideale per chi cerca spazi comodi in una zona ben collegata.


























