Proponiamo in vendita negozio commerciale di circa 54 mq sito a Corsico, con attività di pizzeria attiva e locata con inquilini storici. Completa la proprietà cantina pertinenziale. La categoria catastale è C/1.
L’immobile è attualmente locato con contratto in corso fino al 31/03/2029, con canone mensile di € 1.000, spese condominiali escluse.
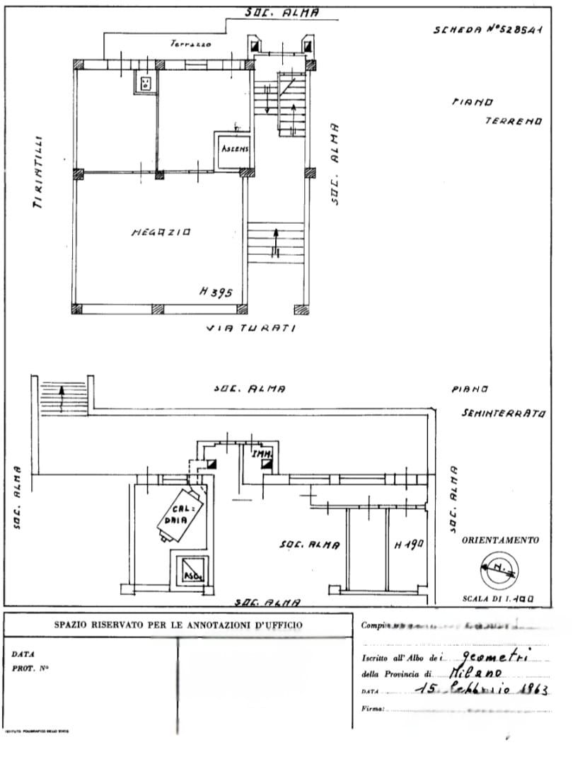
Al piano terra si trovano 2 ampie vetrine su strada che assicurano ottima visibilità commerciale, l’ampio spazio adibito a pizzeria con retro cucina, oltre a servizi igienici. Completa la dotazione una canna fumaria
L’immobile si presenta in buone condizioni generali, con infissi a doppio vetro, serrande manuali, pavimentazione uniforme e impianti a norma.
L’immobile è ubicato in una zona altamente servita e dinamica di Corsico. La posizione è strategica per attività di ristorazione e servizi di quartiere, con tutti i principali servizi di prima necessità a portata di mano (supermercati, negozi, farmacie, scuole, uffici e aree ricreative).
La zona è ben collegata a Milano grazie alla vicinanza con Via Ludovico il Moro/Naviglio Pavese e alle linee ATM 47 (diretta verso la metropolitana Linea Rossa MM Bisceglie e la Linea Verde MM Romolo) e altre corse bus che consentono rapidi spostamenti verso il centro e le principali direttrici urbane.
Locale Commerciale Locato in vendita a Corsico , Via Filippo Turati 1g Ottimo Investimento
Rif. DHOME_00003812
/ Vedi tutte le 20 foto



Via Filippo Turati, 1, 20094 Corsico MI, Italia
170.000€
54 m²
1 bagni
NO Garage
SI Ascensore
piano terra
Anno 1970
Esposizione doppio
Riscaldamento Centralizzato
Finiture non arredato
Cucina Angolo cottura
Qualità impianti Media/Buoni
Efficienza energetica - Indice di prestazione energetica in attesa di certificazione

Vuoi visitarlo?





















