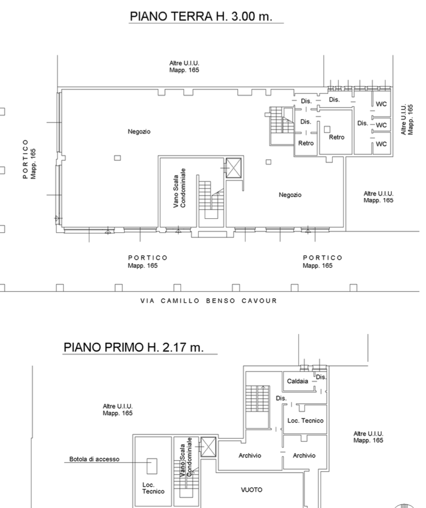
Proponiamo in vendita ampio locale commerciale di 325 mq situato in uno dei palazzi più signorili e curati di Bresso, in zona comoda e ben servita.
L’immobile, caratterizzato da spazi versatili e facilmente modulabili, si presta a molteplici utilizzi: showroom, studio professionale, attività commerciale, ambulatorio, centro servizi e molto altro.
La grande metratura e la disposizione interna consentono un’ottima personalizzazione degli ambienti.
Caratteristiche principali:
Superficie: 325 mq
Posizione strategica e ben collegata
Inserito in contesto elegante e di rappresentanza
Ambienti luminosi e funzionali
Ideale per attività che richiedono visibilità e prestigio
Soluzione ideale per chi cerca un immobile di livello in una delle zone più richieste della città.
LOCALE COMMERCIALE in vendita a BRESSO DI 325 MQ
Rif. DHOME_00002290
/ Vedi tutte le 20 foto



Via Camillo Benso Conte di Cavour, 3, 20091 Bresso MI, Italia
398.000€
325 m²
4 locali
2 bagni
NO Garage
SI Ascensore
piano terra
Anno 1970
Esposizione doppio
Riscaldamento Centralizzato
Finiture non arredato
Cucina A vista
Qualità impianti Media/Buoni
Efficienza energetica - Indice di prestazione energetica in attesa di certificazione

Vuoi visitarlo?























