In posizione strategica ad altissimo passaggio, tra Piazzale Loreto e Viale Monza, proponiamo in locazione importante spazio commerciale di circa 1.000 mq, con 12 vetrine su strada che garantiscono massima visibilità e forte impatto commerciale.
L’immobile si sviluppa su più livelli (piano terra, primo e interrato) ed è già strutturato per attività retail e ristorazione, rappresentando una soluzione ideale per brand strutturati, catene e format innovativi.
🔹 Possibilità di frazionamento
L’asset può essere locato anche separatamente:
• Area Retail (~600 mq)
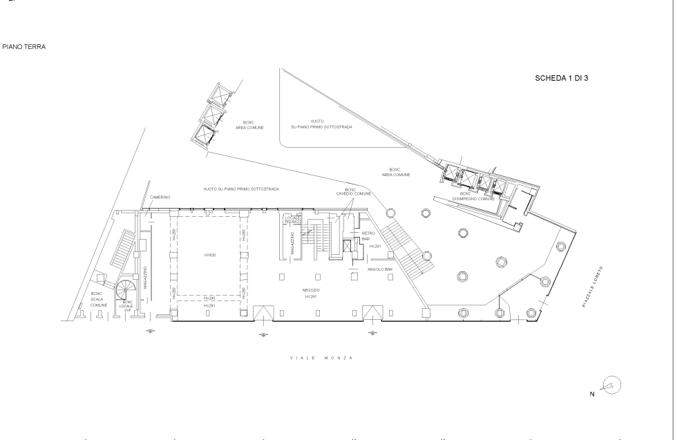
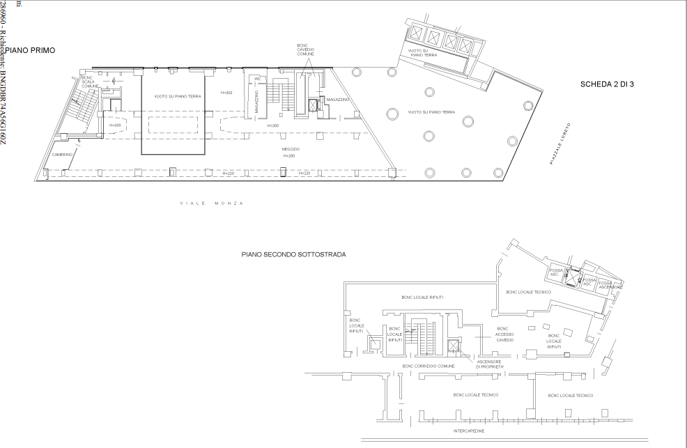
Distribuita tra piano terra e primo piano, perfetta per vendita al dettaglio, showroom o flagship store.
• Area Food & Beverage (~400 mq)
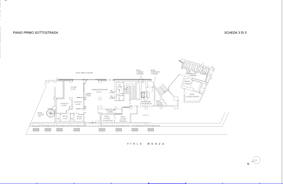
Piano terra: zona bar / accoglienza
Piano interrato: ristorante
Presenza di dehor interno coperto di 40 mq, elemento distintivo raro sul mercato milanese
Caratteristiche principali
12 vetrine su strada ad altissima visibilità
Posizione angolare con forte passaggio pedonale e veicolare
Layout moderno e di forte impatto (stile industriale)
Spazi ampi e versatili
Presenza di area esperienziale (campo indoor) ideale per concept innovativi
Possibilità di utilizzo misto: retail / ristorazione
Immobile di rappresentanza, ideale per brand di medio-alto livello
Soluzione ideale per
Brand fashion / sport / lifestyle
Catene retail
Ristorazione organizzata
Concept store / flagship
Operatori nazionali e internazionali
Piazzale Loreto una delle direttrici più importanti di Milano, , punto strategico per visibilità, collegamenti e flussi continui.
📞 Contattaci per maggiori informazioni e per organizzare una visita riservata.
Located in a prime high-traffic area between Piazzale Loreto and Viale Monza, we offer for lease an important commercial space of approximately 1,000 sqm, featuring 12 street-facing windows that ensure maximum visibility and strong commercial impact.
The property is arranged over multiple levels (ground floor, first floor, and basement) and is already structured for both retail and food & beverage use, making it an ideal solution for established brands, chains, and innovative business concepts.
🔹 Flexible layout / divisibility
The asset can also be leased separately:
• Retail Area (~600 sqm)
Distributed between ground floor and first floor, ideal for retail, showroom, or flagship store.
• Food & Beverage Area (~400 sqm)
Ground floor: bar / reception area
Basement: restaurant
Presence of an indoor covered courtyard, a rare feature in the Milan market
🔥 Key features
12 street-facing windows with excellent visibility
Corner location with high pedestrian and vehicular traffic
Modern, high-impact layout (industrial style)
Spacious and flexible interiors
Unique experiential element (indoor court), ideal for innovative concepts
Suitable for mixed-use: retail and F&B
Prestigious property, ideal for mid to high-level brands
Ideal for
Fashion / sports / lifestyle brands
Retail chains
Organized F&B operators
Concept stores / flagship stores
National and international operators
Contact us for further information and to arrange a private viewing.






























