nel cuore di Arluno, in forte riqualificazione nella zona Ovest di Milano gode di ottimi collegamenti con il capoluogo:
Autostrada A4 Milano–Torino (uscita Arluno) per raggiungere rapidamente Milano e le principali arterie lombarde
SS11 per collegamenti diretti verso Milano e i comuni limitrofi
Stazioni ferroviarie vicine: Vittuone-Arluno (linea Milano–Novara) con collegamenti frequenti verso Milano Porta Garibaldi e Milano Centrale, Linee autobus extraurbane dirette ai principali hub e paesi circostanti.
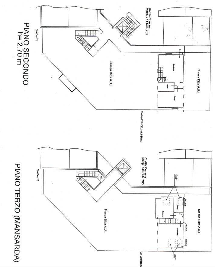
in via Dante, in una delle zone più comode e servite del paese, proponiamo in vendita un elegante DUPLEX di 105 mq COMPLETAMENTE RISTRUTTURATO, inserito in uno stabile d’epoca finemente sistemato.
L’ingresso si apre su una luminosissima zona living arricchita da un camino funzionante, ideale per creare atmosfera e comfort. Gli arredi su misura ottimizzano gli spazi e donano carattere all’ambiente.
La cucina abitabile, completamente attrezzata, si affaccia su una zona interna silenziosa e immersa nel verde.
Sul livello è presente anche un bagno di servizio con box doccia.
Una comoda scala collega la zona notte, composta da: Camera matrimoniale con doppio velux e tende oscuranti, Bagno padronale con vasca e velux, Cameretta con possibilità di realizzare una cabina armadio, Finiture di qualità: ceramica nella zona giorno, parquet nella zona notte, porta blindata, infissi in PVC con doppio vetro.
Completano la soluzione una cantina di pertinenza.






























