DHOME ARCORE
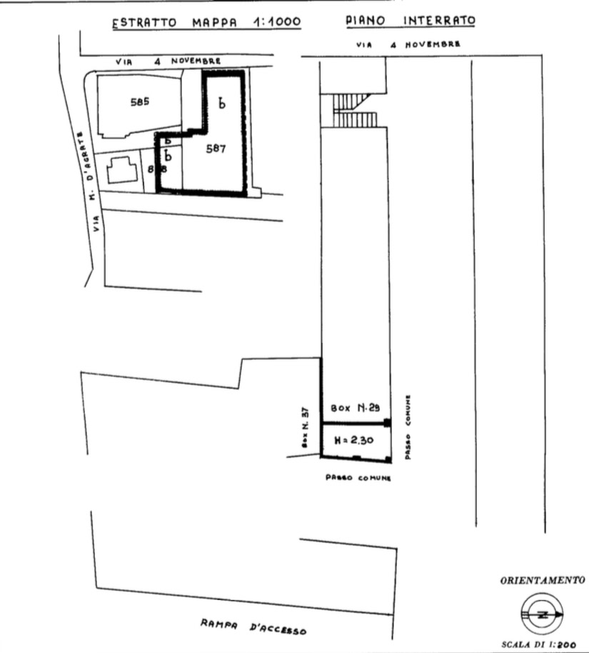
Propone nel pieno centro di Agrate Brianza box ad uso autorimessa al piano S1 con accesso privato mediante sbarra automatizzata
La soluzione con ingresso a basculante ha una metratura di 13 mq,comodo in posizione per eventuali manovre ed in posizione strategica nel pieno centro della Città’.
Acquisto per uso proprio o per un eventuale investimento a reddito date le molteplici richieste di parcheggio coperto nel Centro paese.
Basse spese di gestione annuali.
Libero Subito






















