Proponiamo in vendita grazioso bilocale completamente ristrutturato e arredato, situato in via Jean Jaurès a Milano, in una zona ben servita e ottimamente collegata, ideale sia come abitazione principale che come investimento.
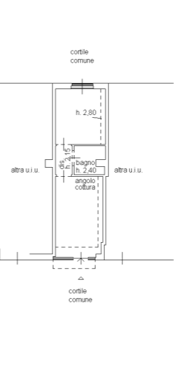
L’appartamento, di circa 38 mq, si trova al piano terra e si presenta in ottime condizioni, pronto per essere abitato. Gli spazi sono stati ottimizzati al meglio e si compongono di una luminosa zona giorno con cucina a vista, camera da letto e bagno cieco moderno e funzionale.
La recente ristrutturazione ha valorizzato ogni ambiente, con finiture curate e arredi inclusi nella vendita, rendendo l’immobile immediatamente disponibile senza necessità di ulteriori interventi.
Attualmente l’immobile è utilizzato con successo come locazione breve su Airbnb, garantendo al proprietario una rendita annua pari a circa il 9%, rendendolo un’interessante opportunità anche per investitori.
La zona è ben collegata grazie alla presenza di mezzi pubblici nelle immediate vicinanze, tra cui linee di autobus e tram, oltre alla metropolitana facilmente raggiungibile, che consente rapidi spostamenti verso il centro città e le principali aree di interesse.
Soluzione ideale per single, giovani coppie o per chi è alla ricerca di un investimento ad alta redditività in una delle città più dinamiche d’Italia.


























