-MONZA-
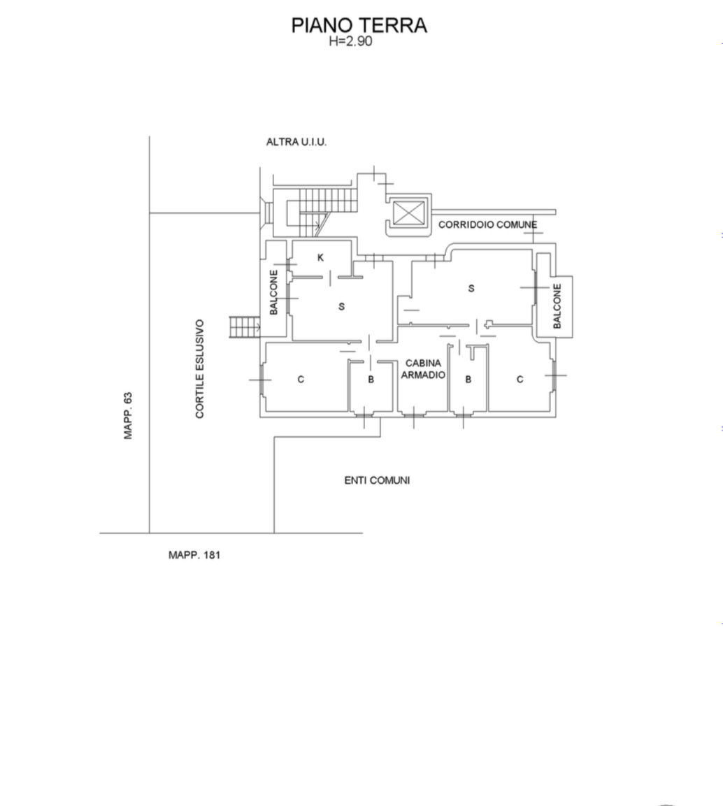
DHOME ARCORE propone in esclusiva in una delle principali vie piu’ rinomate del centro città’ appartamento di 140 mq con possibilità’ di ottenere un bilocale con giardino e un trilocale con terrazzino.
L’immobile e’ già predisposto di due accessi tramite porte blindate separate,caldaie e contatori autonomi.
Ingresso su zona soggiorno con sfogo diretto sul giardino di proprietà’,cucina sei abitabile,disimpegno su zona notte con camera matrimoniale e bagno.
Proseguendo lungo il corridoio della zona notte accediamo al secondo appartamento collegato internamente al precedente ove troviamo soggiorno con predisposizione cucina a vista e sfogo diretto sul terrazzino di proprietà,due camere da letto e bagno.
L’immobile dotato di videosorveglianza,aria condizionata,infissi vetro doppio e impianto di antifurto.
Completano la soluzione due cantine di proprieta’ e box di 18 mq




















