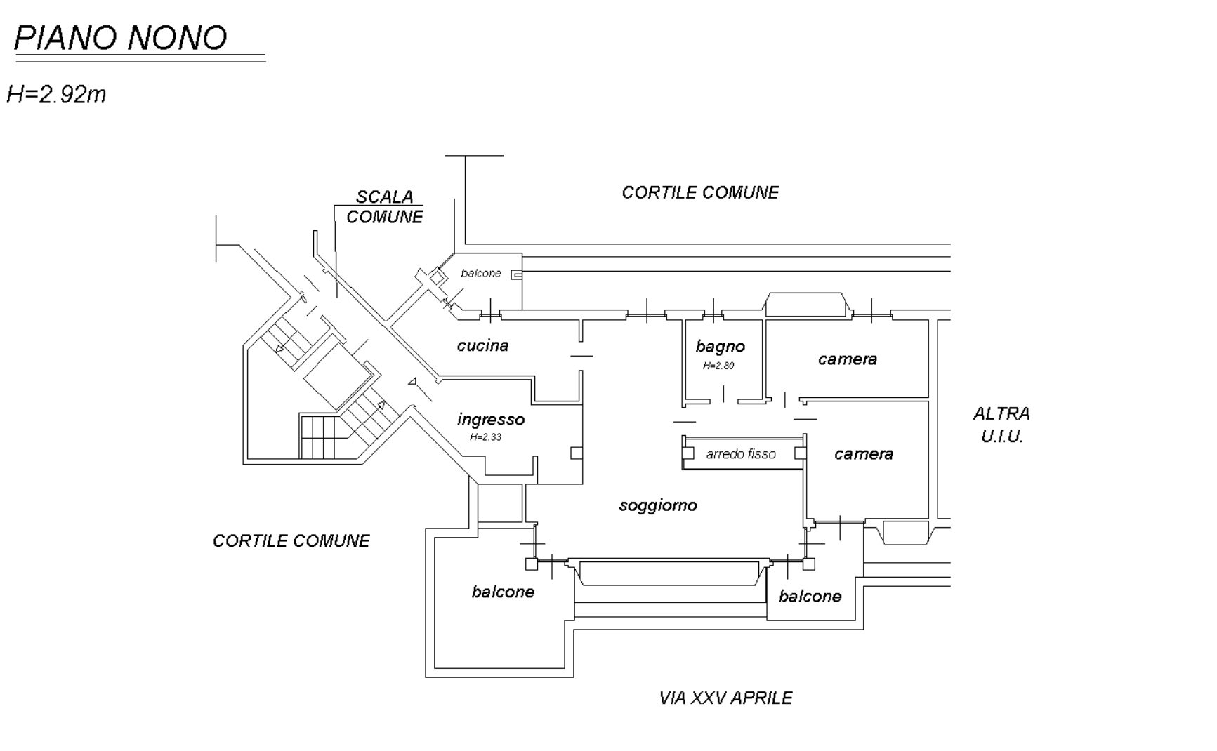
In contesto residenziale ben servito proponiamo in vendita ampio trilocale di circa 110 mq situato al nono piano, caratterizzato da grande luminosità e splendida vista panoramica. L’appartamento è composto da ingresso, ampio soggiorno con accesso al terrazzo, cucina abitabile, due camere da letto, bagno. Completano la proprietà due ulteriori balconi oltre al terrazzo, ideali per momenti di relax all’aperto e per godere di una piacevole vista aperta. L’immobile gode di ottima esposizione, risultando molto luminoso durante tutta la giornata e garantendo tranquillità e privacy grazie al piano alto. Completa la soluzione una cantina al piano interrato. La posizione è strategica e comoda con tutti i principali servizi, negozi e a pochi minuti dalla stazione ferroviaria di Desio, con collegamenti rapidi verso Milano e i comuni limitrofi. Soluzione ideale per chi cerca spazi generosi, luminosità e comodità ai mezzi di trasporto.
Ampio Trilocale in vendita a a Desio con Terrazzo
Rif. DHOME_00006032
/ Vedi tutte le 25 foto



Via XXV Aprile, 19, 20832 Desio MB, Italia
179.000€
110 m²
3 locali
1 bagni
NO Garage
SI Ascensore
9° piano
Anno 1967
Balcone m² 10
Esposizione doppio
Riscaldamento Centralizzato
Finiture parzialmente arredato
Cucina Abitabile
Qualità impianti Media/Buoni
Efficienza energetica - E

Vuoi visitarlo?




























