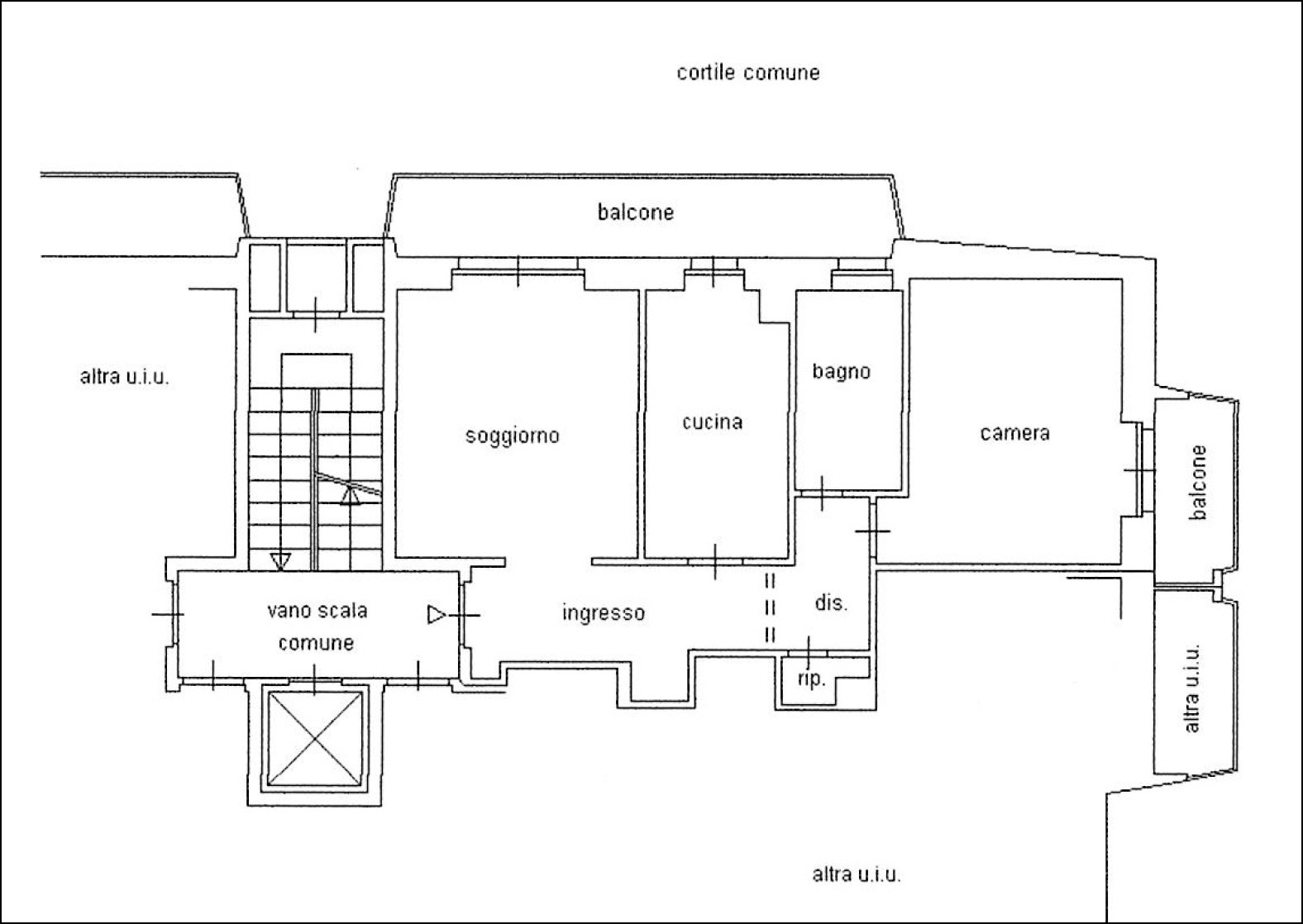
In contesto tranquillo e ben curato, proponiamo in vendita ampio bilocale situato al quarto piano di una palazzina recentemente ristrutturata esternamente a nuovo, dotata di parti comuni in ottimo stato e servita da ascensore.
L’ingresso si apre su un luminoso soggiorno con accesso al balcone, ideale per momenti di relax all’aperto. La cucina abitabile, separata e funzionale, offre spazio sufficiente per pranzi e cene quotidiane. Un disimpegno conduce al bagno finestrato e alla grande camera matrimoniale, anch’essa dotata di balcone, che garantisce comfort e ottima vivibilità.
L’immobile è dotato di cappotto ed infissi nuovi e valorizzato dal riscaldamento a pavimento, soluzione moderna che assicura efficienza energetica, comfort abitativo e una migliore gestione degli spazi.
Situato in Brugherio, in via Volturno 80, l’appartamento gode di una posizione strategica: nelle immediate vicinanze si trovano supermercati, scuole, farmacie, aree verdi e fermate dei mezzi pubblici con collegamenti rapidi verso Monza e Milano. La zona è ideale per chi cerca tranquillità senza rinunciare alla comodità dei servizi.
Soluzione perfetta per giovani coppie, professionisti o come investimento.



























