Ampio appartamento su due livelli con ingressi indipendenti – Monza, Via Alberti
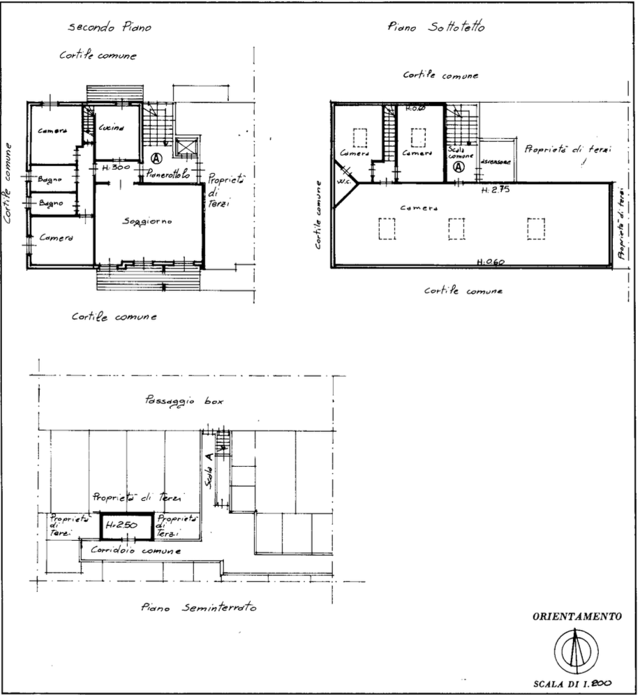
In Via Alberti 10 a Monza, in una palazzina signorile degli anni ’73 composta da tre scale, con giardino condominiale e ascensore, proponiamo un appartamento di ampia metratura su due livelli (terzo e quarto piano), una soluzione particolare, difficile da trovare oggi sul mercato.
L’immobile ha una superficie complessiva di circa 305 mq, categoria A/2 – signorile, con ingressi indipendenti ai due piani e la concreta possibilità di separare il terzo dal quarto piano, rendendolo ideale sia come grande abitazione unica sia come soluzione modulabile nel tempo.
Terzo piano – zona giorno e zona notte ben distinte (circa 115 mq)
L’ingresso si apre su un disimpegno ordinato che distribuisce in modo razionale tutti gli ambienti.
La zona giorno è uno dei punti di forza: un soggiorno doppio molto ampio, pavimentato in marmo, completamente separato dal resto della casa da una porta, quindi perfetto anche per chi ama ricevere.
L’ambiente è luminosissimo, grazie alla tripla apertura verso sud: due porte finestre e una finestra con accesso diretto al terrazzino.
Dal disimpegno si accede anche alla cucina abitabile, comoda e funzionale, con uscita su balcone e scala interna di collegamento con il quarto piano.
Un secondo disimpegno conduce alla zona notte, composta da due camere e due bagni entrambi finestrati, con affaccio a ovest.
Pavimenti in marmo nelle stanze e ceramica nei bagni.
La distribuzione è classica ma estremamente efficace: spazi ampi, ben separati e facili da vivere.
Quarto piano – grande open space e ambienti versatili
Il quarto piano possiede anche un accesso indipendente, dettaglio non scontato che apre a molte possibilità.
Qui troviamo un disimpegno, due stanze, un bagno e soprattutto un soggiorno doppio di circa 120 mq, davvero raro per un appartamento.
Il camino a vista, i cinque punti luce e il soffitto in legno a vista rendono questo ambiente caldo, scenografico e molto caratteristico.
Uno spazio che si presta a molte interpretazioni: living di rappresentanza, zona relax, studio creativo o piano indipendente per un figlio adulto.
Caratteristiche principali:
– Superficie complessiva: circa 305 mq
– Appartamento su due livelli (3° e 4° piano)
– Ingressi indipendenti ai due piani
– Tripla esposizione, molto luminoso
– Palazzina anni ’80 con ascensore e giardino condominiale
– Cantina di pertinenza
– Riscaldamento centralizzato
– Spese condominiali contenute: circa €150/mese
– Classe energetica F
– Box acquistabile separatamente (15 mq)
In sintesi
È una casa per chi cerca spazio vero, luce, e una soluzione diversa dal solito.
Un appartamento che oggi è una grande abitazione unica, ma che domani può trasformarsi, adattarsi, evolvere — proprio come piacciono a chi ama soluzioni intelligenti e non convenzionali.
Nelle immagini sono stati inseriti alcuni render del soggiorno con un’ipotesi di arredo differente, al solo scopo di valorizzare la versatilità degli spazi e mostrarne il potenziale.
Monza – Via Alberti 10
Questa descrizione ha valore puramente indicativo e non costituisce elemento contrattuale.







































